본문의 내용을 유튜브 동영상으로 시청하실 수 있습니다.
미장공사는 벽이나 천정, 바닥 등 매끄러운 표면을 형성하기 위해 시멘트 모르타르 등을 일정한 두께로 바르는 공사를 말합니다. 아래 사진을 보면 콘크리트벽돌로 쌓은 간막이벽체의 표면을 매끄럽게 만들기 위해 시멘트 모르타르로 바른 것을 볼 수 있습니다.

미장바름에 쓰이는 재료는 시멘트 모르타르 외에 회반죽, 석고 및 석회플라스터 등이 있습니다. 따라서 바르는 재료에 따라 구분해서 산출해야 합니다.
또한 바름두께도 차이가 있기 때문에 구별해야 합니다. 가장 많이 바르는 시멘트 모르타르 바름도 바탕면과 부위에 따라 두께가 달라집니다. 바름 두께의 표준은 다음과 같습니다.
바름두께의 표준(mm)
| 바탕 | 바름부분 | 초벌 및 라스먹임 | 고름질 | 재벌 | 정벌 | 합계 |
| 콘크리트, 콘크리트블록 및 벽돌면 |
바닥 | - | - | - | 24 | 24 |
| 내벽 | 7 | - | 7 | 4 | 18 | |
| 천장 | 6 | - | 6 | 3 | 15 | |
| 차양 | 6 | - | 6 | 3 | 15 | |
| 바깥벽 | 9 | - | 9 | 6 | 24 | |
| 기타 | 9 | - | 9 | 6 | 24 | |
| 각종 라스 바탕 |
내벽 | 라스두께보다 2mm 내외 두껍게 바른다. | 7 | 7 | 4 | 18 |
| 천장 | 6 | 6 | 3 | 15 | ||
| 차양 | 6 | 6 | 3 | 15 | ||
| 바깥벽 | 0∼9 | 0∼9 | 6 | 24 | ||
| 기타 | 0∼9 | 0∼9 | 6 | 24 |
내벽의 바름두께의 표준을 보면 콘크리트나 벽돌면일 경우 총18mm를 표준으로 하고 있습니다. 그런데 초벌, 재벌, 정벌과 같이 3단계로 작업을 하면 작업시간이 많이 걸리기 때문에 보통 초벌과 정벌 2번만 하는 경우가 많습니다. 이 경우 초벌은 9mm, 정벌은 5mm로 적용합니다.
미장은 표면을 바르는 것이기 때문에 바름 두께별로 구분해서 바르는 면적을 산출하면 됩니다. 만일 벽체라면 대상 벽체의 폭에 높이를 곱해서 계산할 수 있습니다. 폭은 안목치수로 계산하면 되지만 미장 높이를 적용할 때는 주의해야 합니다.

위 사진을 보면 벽면 전체를 바르지 않는다는 것을 알 수 있습니다. 바닥슬래브에서 매다는 형태로 천장(이중천장)을 만든다면 천장 마감면에 가려 보이지 않는 부분이 생기기 때문에 벽체 전체를 미장으로 바를 필요가 없습니다. 주로 천장 마감면 안쪽으로 100mm 정도만 더 발라줍니다. 따라서 미장 높이는 천장 마감면 높이 + 0.1(m)를 적용합니다.
미장 높이 = 천장 마감면 높이 + 0.1(m)
물론 이중천장의 높이가 낮아서 천장면에서 슬래브 하부면까지 100mm가 되지 않는다면 미장 높는 벽체의 안목 높이를 적용해야 합니다.
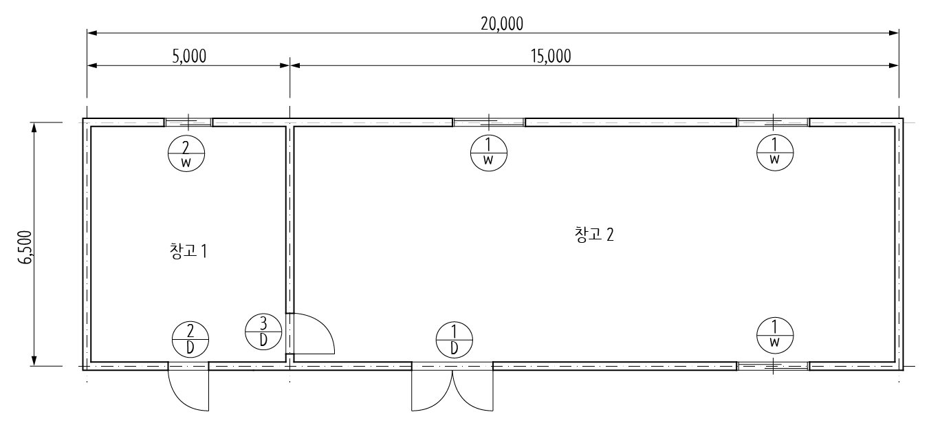
다음과 같은 건물이 있습니다. 이 건물의 내외벽을 콘크리트벽돌로 쌓고 시멘트 모르타르로 미장한다면 미장 면적은 어떻게 산출할 수 있을까요?
- 벽두께는 외벽 1.5B 쌓기, 내벽은 1.0B 쌓기
- 벽높이는 모두 3.6m
- 창호 규격 : 1/D = 2,200×2,400, 2/D = 900×2,400, 3/D = 900×2,100
1/W = 1,800×1,200, 2/W = 1,200×1,200

우선 벽체의 두께를 계산해보면
외벽은 1.5B 쌓기이므로 190+10+90 = 290(mm)
내벽은 1.0B 쌓기이므로 190(mm) 입니다.
미장 면적을 계산하려면 벽체의 면적에서 개구부의 면적을 빼주어야 합니다.
외벽이라면 1/W이 3개, 2/W가 1개, 1/D가 1개, 2/D가 1개의 면적을 빼주어야 합니다.
먼저 외벽의 미장 면적을 계산하면 다음과 같습니다.
외벽에의 안목 둘레길이 = ((20+0.29)+(6.5+0.29))×2 = 54.16(m)
외벽 미장 면적 = 54.16×3.6 = 194.976(m²)
공제해야 할 개구부 면적 = (1.8×1.2×3(개)+1.2×1.2+2.2×2.4+0.9×2.4) = 15.36(m²)
따라서 외벽 미장 면적 = 194.976-15.36 = 179.62(m²)
내벽의 미장 면적을 산출할 때는 벽체 두께에 주의해야 합니다. 창고1을 보면 외벽의 두께는 0.29이지만 내벽의 두께는 0.19이기때문에 안목치수를 계산할 때 주의해야 합니다.
따라서 창고1의 안목치수를 계산하려면 5-0.29/2-0.19/2로 계산해야 합니다.
창고1의 내벽 미장 면적은 다음과 같이 계산합니다.
창고1 안목 둘레길이 = ((5-0.29/2-0.19/2)+(6.5-0.29))×2 = 21.94(m)
외벽 미장 면적 = 21.94×3.6 = 78.984(m²)
창고1에 설치된 개구부는 2/D, 3/D, 2/W 입니다.
공제해야 할 개구부 면적 = (0.9×2.4+0.9×2.1+1.2×1.2) = 5.49(m²)
따라서 창고1 내벽 미장 면적 = 78.984-5.49 = 73.49(m²)
창고2의 내벽 미장 면적도 같은 방식으로 계산합니다.
창고1 안목 둘레길이 = ((15-0.29/2-0.19/2)+(6.5-0.29))×2 = 41.94(m)
외벽 미장 면적 = 41.94×3.6 = 150.984(m²)
창고1에 설치된 개구부는 1/W이 3개, 1/D, 3/D 입니다.
공제해야 할 개구부 면적 = (1.8×1.2×3(개)+2.2×2.4+0.9×2.1) = 13.65(m²)
따라서 창고1 내벽 미장 면적 = 150.984-13.65 = 137.33(m²)
다음 글 ▶ 미장공사 수량 산출 - 바닥
| 석공사 수량 산출 (0) | 2021.04.18 |
|---|---|
| 타일공사 수량 산출 (2) | 2021.04.18 |
| 미장공사 수량 산출 - 바닥 (0) | 2021.04.04 |
| 미장공사 수량 산출 - 기타 (0) | 2021.04.04 |
| 모르타르에서 시멘트와 모래의 수량을 산출하는 방법 (1) | 2021.03.14 |